Page suivante
Page précédente
Mennecy (91540)

Appartement 3 pièce(s) 2 chambre(s) 61.65 m²

2
1 009,49 € CC*
Réf 1810

Idéalement situé à quelques minutes à pieds du centre ville et de la gare, Appartement 3 pièces avec terrasse et 2 places de parking, dans une agréable résidence très récente et sécurisée.

cet appartement vous offre une entrée, séjour avec cuisine ouverte aménagée, accès sur un grand balcon, 2 chambres, salle de bains et wc, rangements.

loyer charges comprises 1009,49 € (eau et chauffage inclus, provision de charges incluse pour 204 € avec regularisations annuelle), dépôt de garantie 805,49 €.

Prévoir les honoraires de location de 800 € TTC (dont 184 € TTC d'état des lieux)

Disponible

Les informations sur les risques auxquels ce bien est exposé sont disponibles sur le site géorisques.gouv.fr

Bilan énergétique

Diagnostics énergetiques
Consommation énergétique
A B C D E F G
Emission de gaz à effet de serre
A B C D E F G
DPE ANCIENNE VERSION
A propos de ce bien Caractéristiques de ce bien
  • Surface 61,65 m²
  • 2 chambre(s)
  • construit en 2016
  • Chauffage collectif : radiateur (gaz)
  • 2 parking(s)
  • 1er étage
  • interphone

Composition

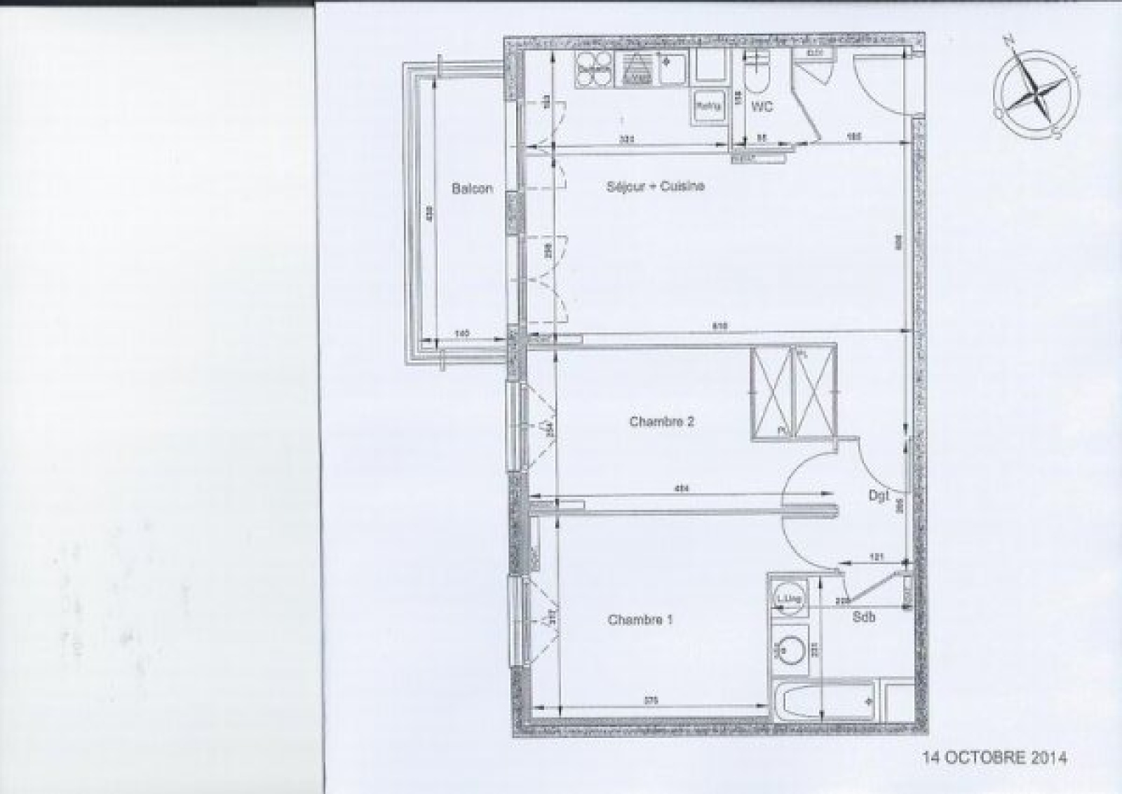
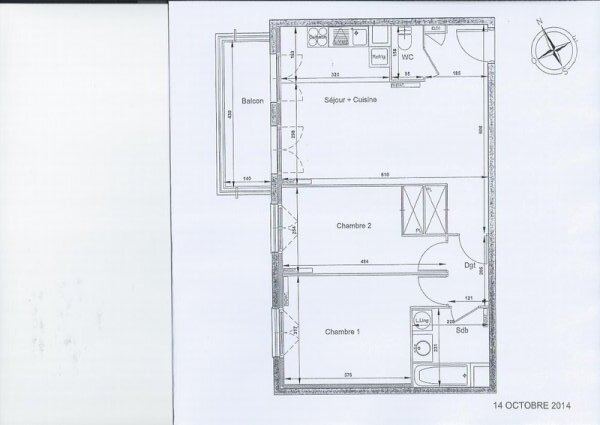
Composition de ce bien

Rez-de-chaussée

  • Balcon 6 m²
  • Séjour + Cuisine US 28.60 m²
  • Chambre avec placards 11.30 m²
  • Chambre 12.90 m²
  • Salle de Bain 4.90 m²
  • W.C. 1.50 m²

Info copro

Copropriété
  • Copropriété Oui

Financier

Informations financières
Loyer CC* / mois 1 009,49 €
Honoraires TTC charge locataire 800 €
Dont état des lieux 184 €
Dépôt de garantie TTC 805 €
Charges locatives (Previsionnelles mensuelles les avec regularisation annuelle) 204 €
Agence du parc Agence

* CC : Charges comprises