Page suivante
Page précédente
Mennecy (91540)

Appartement 1 pièce(s) 1 chambre(s) 33 m²

1
1
Ascenseur
126 000 €
Réf 1911

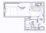
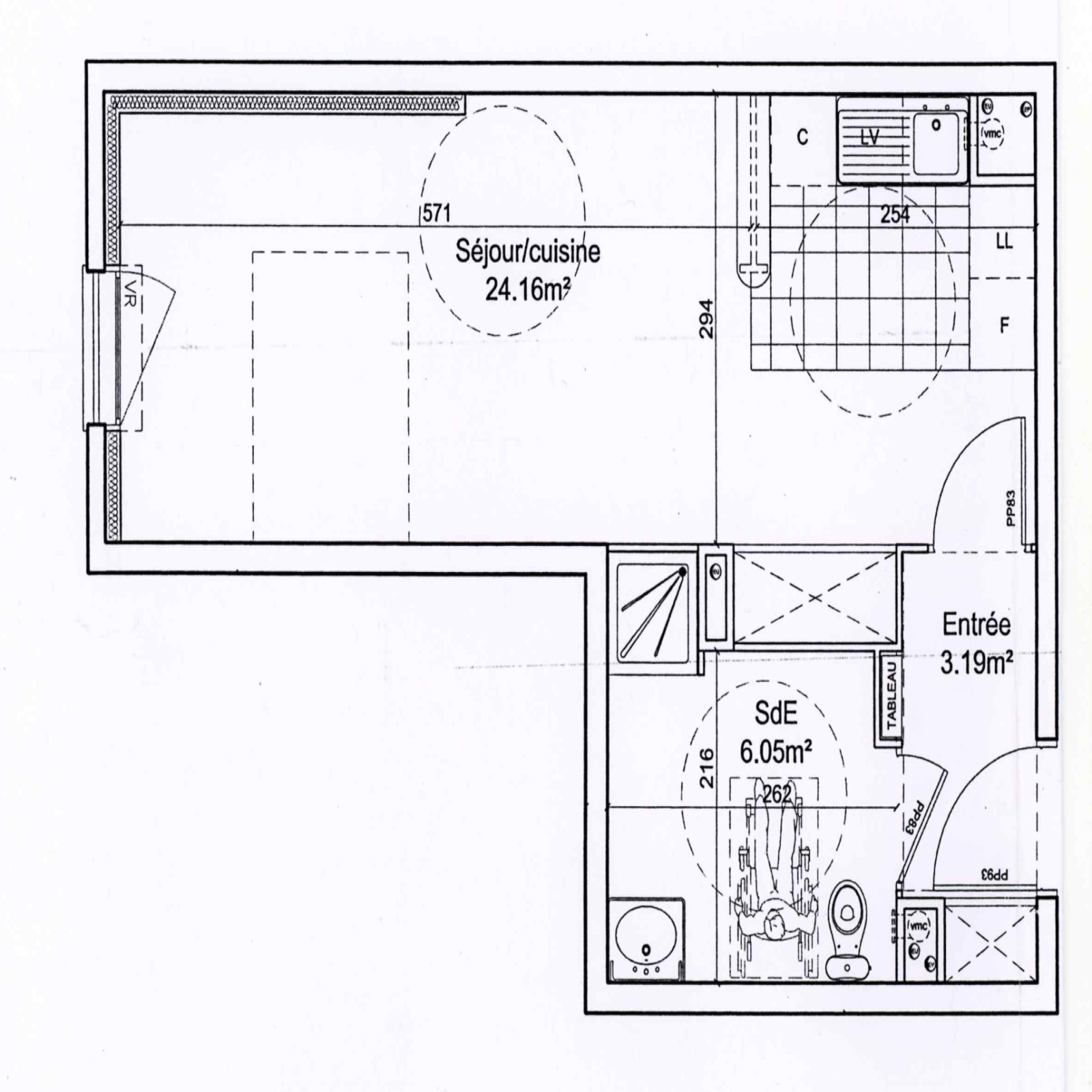
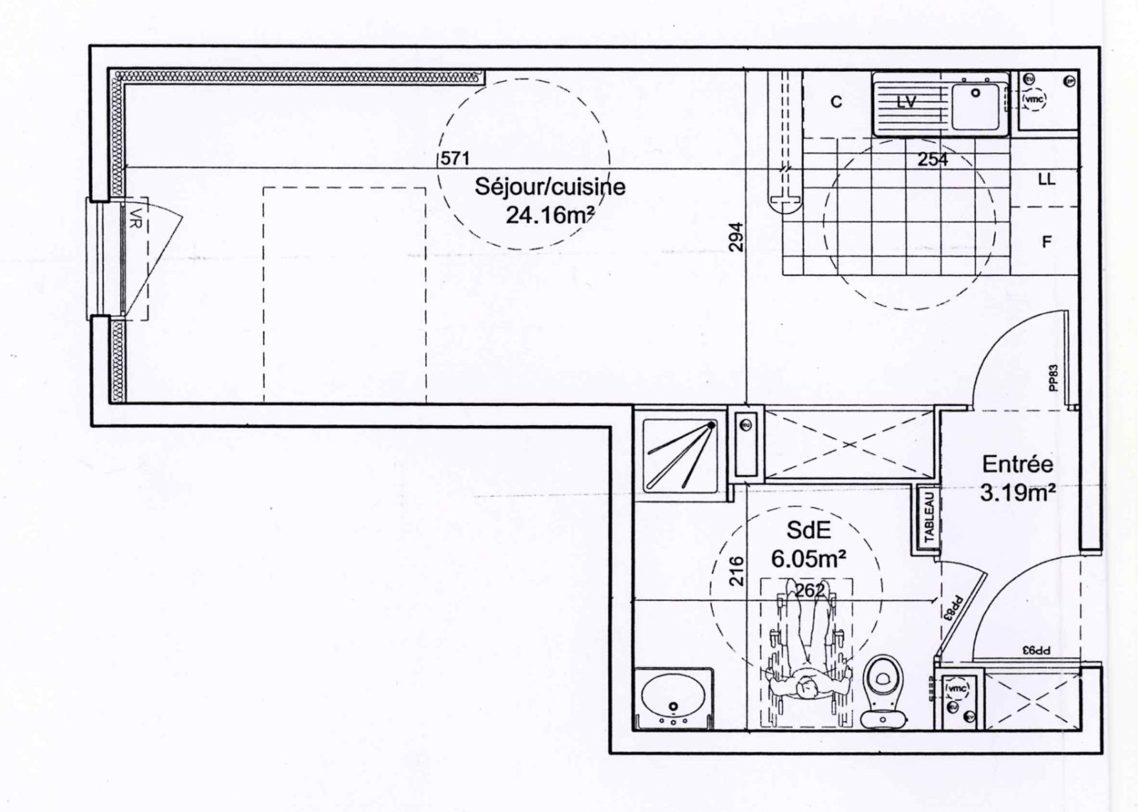
Situé dans une résidence de 2013, ce beau STUDIO de 33 m2 offrant une entrée séparée avec placard aménagé, pièce principale carrelée bien disposée avec grand placard aménagé et coin cuisine bien pensé et aménagé, une grande salle d'eau avec wc,1 place de parking en sous sol.

Copropriété de 450 lots 

quotte part annuelle de charges 1285 €/an (provision d' eau froide et chaude + chauffage inclus relevés de compteurs annuel), pas de procédure en cours.

Les honoraires de l'Agence sont à la charge du vendeur

Les informations sur les risques auxquels ce bien est exposé sont disponibles sur le site géorisques.gouv.fr

Bilan énergétique

Diagnostics énergetiques
Consommation énergétique
A B C D E F G
Emission de gaz à effet de serre
A B C D E F G

Montant estimé des dépenses annuelles d'énergie pour un usage standard est compris entre 330 € et 500 € . Prix moyens des énergies indexés sur les années 2021, 2022 et 2023 (abonnements compris).

A propos de ce bien Caractéristiques de ce bien
  • Surface 33 m²
  • carrez 33 m²
  • séjour 24 m²
  • 1 chambre(s)
  • 1 salle(s) de bain
  • 1 salle(s) d'eau
  • construit en 2014
  • kitchenette
  • Chauffage autre : radiateur (gaz de ville)
  • 3 étage(s)
  • ascenseur
  • interphone
  • accès handicapé

Composition

Composition de ce bien

Rez-de-chaussée

  • salon/sejour 24.16 m²
  • salle de bain 6.05 m²

Info copro

Copropriété
  • Copropriété Oui
  • Nombre de lots 450
  • Quote part annuelle des charges 1 285 €
  • Plan de sauvegarde Non
  • Statut du syndic Pas de procédure en cours

Financier

Informations financières
Prix de vente 126 000 € Les honoraires d'agence seront intégralement à la charge du vendeur
Charges 108 €
Taxe foncière annuelle 751 €

Simulation

Calcul des mensualités
* Champs obligatoires
Agence du parc Agence