Page suivante
Page précédente
Ormoy (91540)

Appartement 1 pièce(s) 27 m²

1
2
149 900 €
Réf 1857

Dans un petit programme de 40 logements construction de 2024

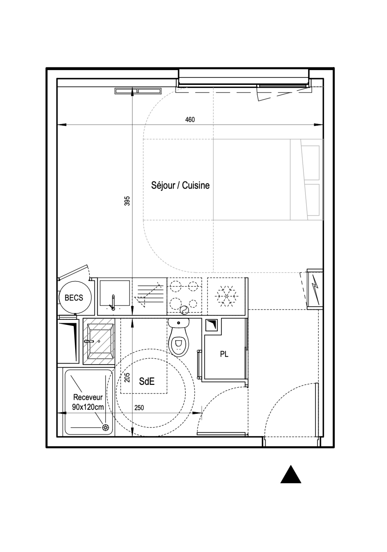
APPARTEMENT Type STUDIO DE 27 m².
Entrée avec placard, pièce principale de 21,50 m² carrelée, coin cuisine aménagée et équipée (four, plaque vitro. et hotte), salle d'eau aménagée carrelée avec wc.
DEUX places de parking

APPARTEMENT NEUF, jamais occupé.

Honoraires charge vendeur

Les informations sur les risques auxquels ce bien est exposé sont disponibles sur le site géoriques.gouv.fr

Bilan énergétique

Diagnostics énergetiques
Consommation énergétique
A B C D E F G
Emission de gaz à effet de serre
A B C D E F G
DPE en cours
A propos de ce bien Caractéristiques de ce bien
  • Surface 27 m²
  • carrez 26,97 m²
  • séjour 21,54 m²
  • 1 salle(s) d'eau
  • construit en 2024
  • kitchenette (équipée)
  • Chauffage individuel : autre (autre)
  • 2 parking(s)

Composition

Composition de ce bien

Rez-de-chaussée

  • salon/sejour 25 m²
  • chambre 11.80 m²
  • chambre 4.69 m²

Info copro

Copropriété
  • Copropriété Oui
  • Nombre de lots 40

Financier

Informations financières
Prix de vente honoraires TTC inclus 149 900 €

Simulation

Calcul des mensualités
* Champs obligatoires
Agence du parc Agence